UTF-8 Go top 頁頂

為善如春天之草 不見其長 日有所增
作惡如磨刀之石 不見其缺 日有所損

[ICO]NameSizeDescription

[PARENTDIR]Parent Directory -  
[IMG]202ecmCQAfig3.gif 17Kgif
[IMG]CEILING ROSE METHOD 1.gif4.4Kgif
[IMG]D13_1.gif4.5Kgif
[IMG]jbbrbl.gif9.3Kgif
[IMG]light2.gif 71Kgif
[IMG]light3.gif 62Kgif
[IMG]light4.gif 76Kgif
[IMG]LoopInCeilingRose.gif9.2Kgif
[IMG]LoopInWiringScheme.gif 18Kgif
[IMG]Two-way Light Switch Wiring.GIF9.5Kgif
[IMG]2 Way.jpg 81Kjpg
[IMG]3-way-switching-from-junction-box.jpg105Kjpg
[IMG]4pwjpg16rj.jpg 29Kjpg
[IMG]13_wiring_diagram.jpg 21Kjpg
[IMG]2475D_wiring_diagram.jpg 26Kjpg
[IMG]37666159.jpg 27Kjpg
[IMG]38291743.jpg 35Kjpg
[IMG]91546313.jpg 42Kjpg
[IMG]Automatic Water Tank Level Controller.jpg 30Kjpg
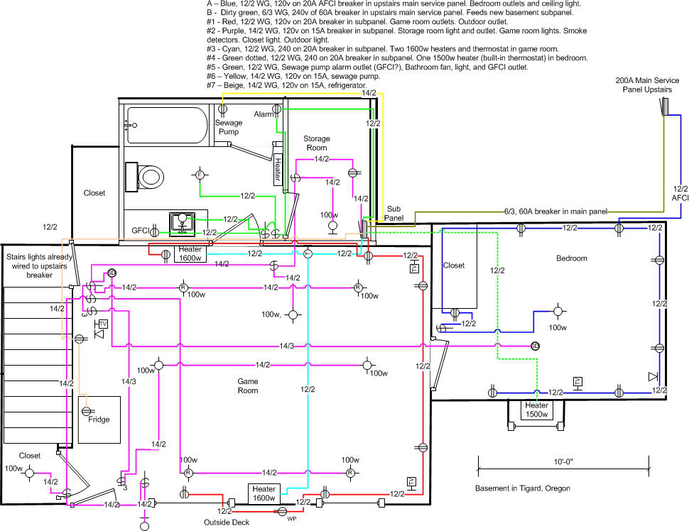
[IMG]basementwiring.jpg111Kjpg
[IMG]Ceiling-rose-last-old-colours.jpg 39Kjpg
[IMG]electricalplanGFpic3.jpg121Kjpg
[IMG]house-wiring-1main-600.JPG 61Kjpg
[IMG]images.jpg8.9Kjpg
[IMG]Induction coil.jpg 23Kjpg
[IMG]Lighting - 2 Plate Method.jpg 69Kjpg
[IMG]Lighting - 3 Plate Method.jpg 72Kjpg
[IMG]Lighting Wiring.jpg 28Kjpg
[IMG]loop-in-junction-box-wiring-diagram.jpg 54Kjpg
[IMG]Stair case wiring circuit diagram, OR How to control a lamp from two places by two 2 way switches.JPG 70Kjpg
[IMG]two way light switch diagram or staircase wiring diagram.JPG 24Kjpg
[IMG]two way switching diagram.jpg 33Kjpg
[IMG]000oneway.png 27Kpng
[IMG]2hyhuah.png769Kpng
[IMG]After_Balcony_Light_Wiring.png 42Kpng
[IMG]DIY0199.png 70Kpng
[IMG]DIY0201.png 32Kpng
[IMG]untitled2.png7.0Kpng

唐太宗問玄奘大師:
『我想供僧,但聽說許多僧人
    無有修行,應當如何 ?』
玄奘大師開示說:
『昆山有玉,難免混雜泥沙;
    麗水產金,豈能沒有瓦礫 ?』

「土木雕成羅漢,敬奉就能培福;
    銅鐵鑄成佛像,毀壞則會造罪 !」
「泥龍雖不能降雨,
    但祈雨必須祈禱泥龍;
    凡僧雖不能降福,
    但修福必須供敬凡僧 !」

世間一切苦     悉從自利起
世間一切樂     皆從利他生
All Suffering comes from selfish
All Happiness comes from contribution

蠢人總覺別人蠢 ,傻瓜總覺別人傻!
Only a fool would think the others are fool !

歡迎廣傳 Copy Welcome !